40°40’34.155”N | 73°59’0.172”W
architecture
townhouse/vdb
townhouse/prs
townhouse/lmr
townhouse/sth
townhouse/221
townhouse/dmd
townhouse/fgp
townhouse/484
townhouse/prp
townhouse/lvn
townhouse/stm
house/dfd
apartment/w18
apartment/9nm
apartment/184
loft/535
loft/lxn
studio/w25
concepts
the jetty
passage
guesthouse
cabin
casa de la playa
barn
pavilion
contained
tower
+ info
+ instagram
architecture
townhouse/vdb
townhouse/prs
townhouse/lmr
townhouse/sth
townhouse/221
townhouse/dmd
townhouse/fgp
townhouse/484
townhouse/prp
townhouse/lvn
townhouse/stm
house/dfd
apartment/w18
apartment/9nm
apartment/184
loft/535
loft/lxn
studio/w25
concepts
the jetty
passage
guesthouse
cabin
casa de la playa
barn
pavilion
contained
tower
+ info
+ instagram
+
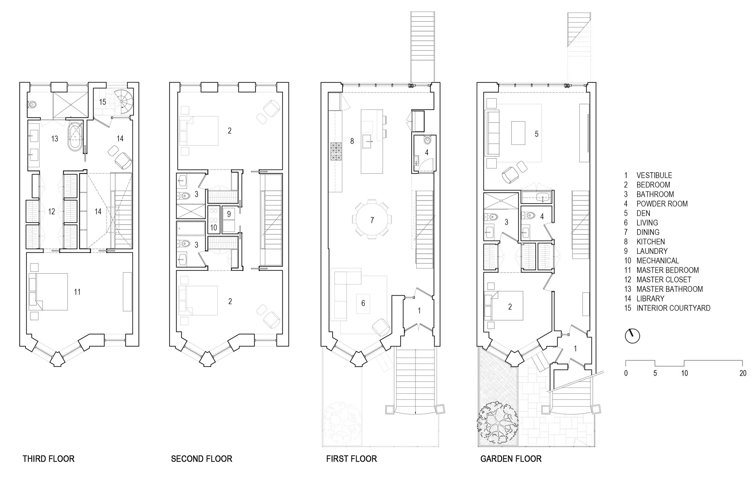
TOWNHOUSE/prp
brooklyn townhouse renovation
+
+
+
+
+
+
+
+
+
+
+
+
+